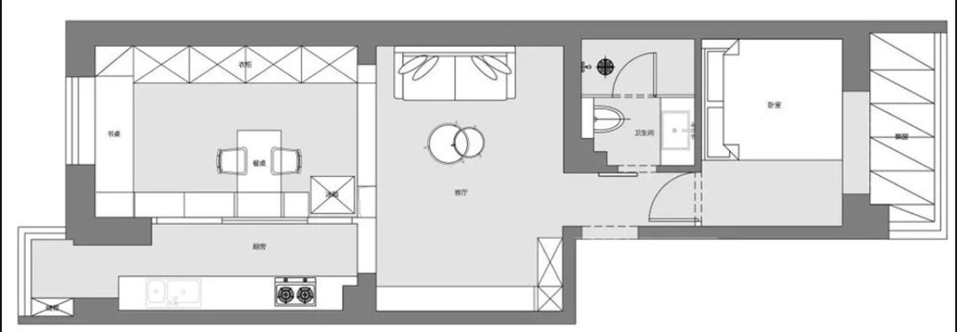
爆改北京50㎡老破小!主卧拆掉打造多功能餐厅,空间变大超舒适
今天要分享的家装案例,是一套位于北京海淀区,使用面积仅50㎡的小两居。这是一套二手房。两室一厅紧凑户型,但是格局比较鸡肋,如果内部空间不改造的话,即便装了修,日后生活也会很不方便。于是房子的主人找到设计师,希望可以将内部格局进行一下改动,让空间能够得到充分利用!
改造前的问题
卫生间面积小
厨房过于狭长显得很拥挤
客厅采光差,收纳力也不足
空间利用率极低,主卧面积本来不小,但一张床占据了大部分空间,导致主卧看起来很凌乱
次卧空间完全浪费,堆积杂物,功能混乱使用率低,阳台只能晾衣
改造后
主卧改成多功能室,将餐厅、衣帽间、书房功能设计在这里,变成了一间多功能的餐厅!
厨房和主卧之间的隔断墙中间掏个窗洞,增加通透性,借用彼此空间增加区域的宽敞度。
客厅增加收纳柜设计。
卫生间借用次卧面积扩充空间
改造后次卧变成了主卧,和阳台打通后,卧室面积变宽敞,打造地柜增加收纳面积和休闲区!
这是原来的客厅区域,光线暗空间比较凌乱。除了沙发电视和茶几以外,没有收纳空间!
两间卧室的布局很拥挤,阳台晾衣遮挡阳光。餐厅办公桌和衣柜都在次卧堆积,餐厅离厨房比较远,动线路径不方便。主卧没有收纳区,进门就是一个大的双人床,层高偏低,床头过高就显得很拥挤!
改造后,进门玄关对面的卫生间隔断墙上安装洞洞板,增加玄关收纳,挂放包包和衣物都很方便,精致的绿植摆放在置物板上,仿佛迎接主人一般,让主人在回到家里的那一刻,就能感受到轻松愉悦的家居氛围!
改造后的客厅将电视背景墙做了收纳设计,简单的大白墙上挂放环绕音响和电视,上下空间分别做成开放式和封闭式的收纳柜。改造前后对比,变化非常大!
主卧拆掉后,客厅空间变得格外宽敞舒适,光线也能完全照射进来。动线路径也很流畅!
进门玄关没有收纳柜,靠近电视柜旁边设计师特意打造一堵到顶的玄关衣柜。解决玄关收纳问题!客厅增加了收纳区,就减少了凌乱感。物品有地方摆放就不会堆放在沙发上!
折叠布艺沙发还可以瞬间变成双人床,家里有朋友亲戚来做客,需要留宿的话,沙发还能当睡床用!比改造前还多了一间临时卧室!
主卧拆掉后,变成了多功能的餐厅,房间里具有次卧原本都有的功能,但家具全部固定式设计,减少了空间的压抑感和凌乱感,并且到顶的大衣柜比原来的衣柜收纳要强很多!
因为房间另一侧是厨房,所以改造后,隔断墙中间打通一个窗洞,将餐厅和厨房连接在一起。并且餐桌是抽拉式设计,平时隐藏在餐边柜里,用餐的时候拉出来就可以了。不占空间,留出宽敞的活动区,女主人还能练瑜伽!餐边柜一直延伸到窗台,左转角台面设计,直接连书桌功能都打造出来了
这个简约不简单的设计,可以说拯救了小户型的收纳大问题。干净简洁的空间,和之前的次卧一对比,完全是两个不同的档次!
窗洞可以看到厨房的全貌,方便夫妻俩交谈互动和相互陪伴。中间还装了布帘,可以防止油烟乱串。
大衣柜两侧都做了开放式储物格,增加收纳空间的层次感。看起来更加简约利落!
厨房改造前后的对比。空间宽敞明亮了不止一点点。
原本的隔断墙打个窗洞后,走廊通道也不显得那么压抑和憋闷了。为了和整体风格搭配,厨房的橱柜采用木制台面做操作台,特殊材质和工艺的木板,足够的厚度,特点是耐高温,可以在一定程度上起到轻度的防火防油防水作用。不过打理起来相对要仔细一些。
洗衣机内嵌在厨房台面下方,减少卫生间压力。家用电器采用内嵌式设计,不占用额外的面积。简约好打理!
虽然卫生间占用了原本次卧的面积,但是和阳台打通后,保证了足够的空间面积。宽敞通透采光充足,最主要的是收纳面积大大的提升了!
地面打造地柜,全部都是收纳柜,换季和不常用的被褥都可以放在这里
卫生间改造后,满足了日常生活需求,还做了干湿分离的淋浴房。简简单单,黑框玻璃隔断门增加了时尚简约的感觉!全屋装修最大的特点就是改造格局。格局一变空间宽敞又舒适。如果你家也有拥挤狭窄的小户型,最好先进行格局改造然后再装修呦!
推荐阅读:鄂都财经网
